Porta blindata 2 ante Pannelli standard Telaio black
Porta blindata 2 ante Pannelli standard Telaio black
PREZZI IVA ESCLUSA
Impossibile caricare la disponibilità di ritiro
TEMPI DI CONSEGNA: 15 gg lavorativi
Materie prime, modelli esclusivi, competenza, talento degli artigiani specializzati e tecnologie avanzate caratterizzato alta qualità delle porte blindate Portalacasa by Bertolotto, interamente realizzate nel nostro Paese. Le porte e la creatività Made in Italy sono infatti un binomio identificante per il brand. Le porte sono interamente realizzate in Italia, costruite con materiali di prima scelta, realizzate su modelli esclusivi nati dalla comunione tra tradizione e nuove idee innovative, impiegando lavorazioni artigianali e tecnologia all’avanguardia, orgogliosamente italiane.
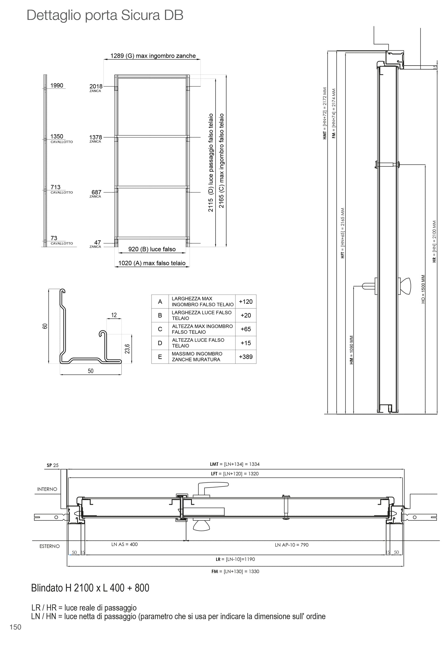
Porta blindata dotata di 7 punti di chiusura, con rinforzi verticali e due lamiere. Serratura a doppia mappa e dotata di 5 chiavi. Telaio e falso telaio inclusi.
- resistenza all’effrazione: classe di sicurezza 3 definita da normativa europea ENV1627. Questo elemento definisce la capacità del blindato di opporsi ai tentativi di intrusione con sistemi di chiusura e superfici antiscasso;
- isolamento termico: la porta d’ingresso soprattutto quella esterna deve limitare il passaggio del freddo e del caldo e proteggere dalle intemperie, garantendo massimo comfort abitativo.
- isolamento acustico e quindi protezione dai rumori esterni.
- estetica personalizzata: sarà possibile scegliere non solo il design del pannello di rivestimento esterno e interno del blindato ma anche la maniglia in modo da armonizzare il progetto d’arredo seguendo lo stile delle porte interne.
Share






